Welcome to the Oakdale — A Modern Farmhouse Floor Plan That Truly Does It All
Discover the Oakdale, a beautifully designed modern farmhouse home plan that combines luxury, functionality, and everyday comfort. With its eye-catching modern farmhouse elevation, this home offers exceptional curb appeal and a thoughtfully designed interior that meets the needs of today’s homeowners.
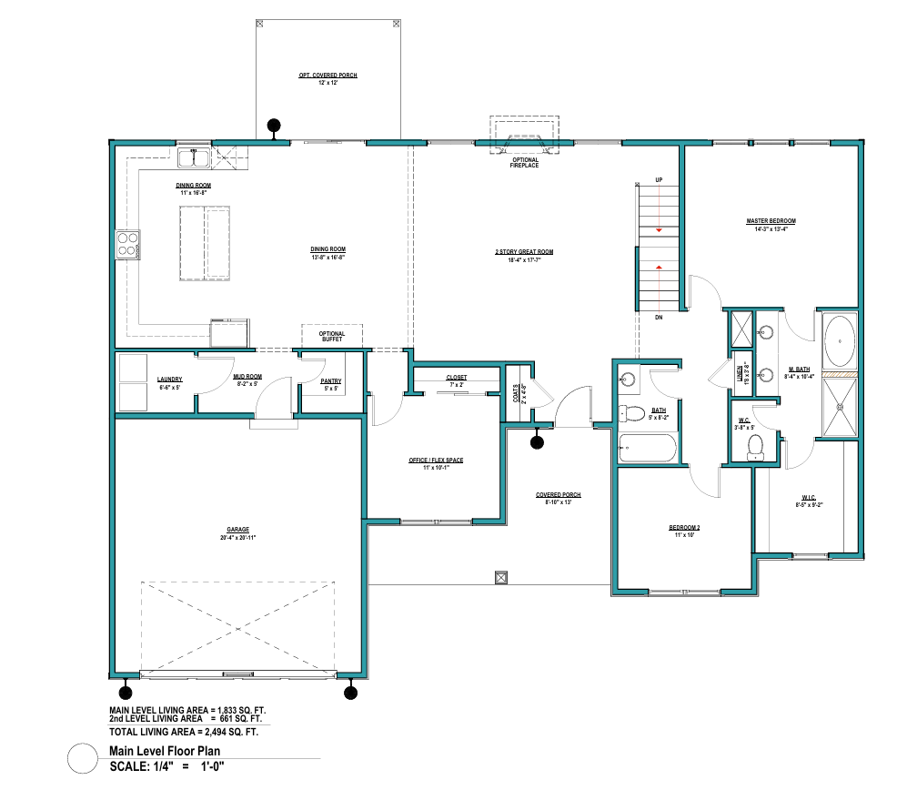
Inside, the Oakdale features a stunning two-story great room with a dramatic window wall that brings in natural light and creates a bright, open-concept living space. At the center of the home is a luxury kitchen with premium finishes, an oversized walk-in pantry, and effortless flow into the elegant dining room—perfect for both entertaining and everyday meals.
Designed for convenience and relaxation, the first-floor primary suite includes a spacious walk-in closet and a spa-inspired retreat, offering a peaceful escape from the day. With a total of four bedrooms, this home provides plenty of space for families of all sizes. A flexible bonus room can be used as a home office, guest bedroom, or formal dining room, giving you the freedom to personalize your space.
Additional highlights include a dedicated mudroom for everyday organization and a well-placed laundry room for maximum efficiency. Every inch of the Oakdale is built with intention—balancing high-end features with practical, livable design.
If you're looking for a new home floor plan that offers style, space, and flexibility, the Oakdale delivers. This is more than a house—it’s a home that does everything, beautifully.








